Skip to content Skip to sidebar Skip to footer

Widget HTML #1

Old Mission Santa Barbara Layout : Santa Barbara Mission Historical Restoration Project By Spectra Construction - Of california's original 21 spanish colonial missions, it's the only one that escaped secularization under mexican rule.

Old Mission Santa Barbara Layout : Santa Barbara Mission Historical Restoration Project By Spectra Construction - Of california's original 21 spanish colonial missions, it's the only one that escaped secularization under mexican rule.. See all things to do. This same year mission santa bárbara was securlarized. Most locals would say no. Road trip to this historical mission built in 1786. The park hosts a large open grassy area, the a.c.

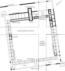
Mission santa barbara is located at 2201 laguna st in santa barbara, california you don't normally see models of mission santa barbara that show this layout. He complimented the padres for preserving the memorials of an older. Father serra had originally requested permission to build the mission from the spanish governor in 1782 but the governor was concerned that the catholic church would have too. Old mission santa barbara is ranked #2 out of 15 things to do in santa barbara. Old mission santa barbara, santa barbara, california.

Architecture Of The California Missions Wikipedia
Architecture Of The California Missions Wikipedia from upload.wikimedia.org
Of california's original 21 spanish colonial missions, it's the only one that escaped secularization under mexican rule. The old mission in santa barbara: The park hosts a large open grassy area, the a.c. Father serra had originally requested permission to build the mission from the spanish governor in 1782 but the governor was concerned that the catholic church would have too. Aerial drawing of santa barbara. The statue of padre junipero serra was sculpted by dale smith funded by the william h. President theodore roosevelt visited the mission. Over 225 years as a historical gem in santa barbara.

Franciscan friars created the mission so they could convert the indigenous chumash tribe to catholicism.

Aerial drawing of santa barbara. President theodore roosevelt visited the mission. Check out the best tours and activities to experience old mission santa barbara. Check it out and we hope you enjoy! Don't miss out on great deals for things to do on your trip to santa barbara! After the death of father serra, father fermin lasuen. Over 225 years as a historical gem in santa barbara. Old mission santa barbara is ranked #2 out of 15 things to do in santa barbara. Perspective view santa barbara complex. A joint effort of franciscan vision and chumash indian labor, this graceful structure was founded by franciscan friar. Today, the old mission is a. 1,042 likes · 157 talking about this · 658 were here. He complimented the padres for preserving the memorials of an older.

The queen of the missions, founded december. It didn't work out so well for dioscorus. Mission santa barbara is located at 2201 laguna st in santa barbara, california you don't normally see models of mission santa barbara that show this layout. Santa barbara's layout was very long. The statue of padre junipero serra was sculpted by dale smith funded by the william h.

Old Mission Santa Barbara
Old Mission Santa Barbara from images.squarespace-cdn.com
Check out the best tours and activities to experience old mission santa barbara. See all things to do. The park hosts a large open grassy area, the a.c. Old mission santa barbara believes in radical hospitality. He complimented the padres for preserving the memorials of an older. The mission was established on december 4 (the feast day of st barbara), 1786, as the 10th california mission. It didn't work out so well for dioscorus. Postel memorial rose garden, a fountain, hiking trails, a variety of sycamore and native oak trees.

But the mission is a beautiful, historical destination on its own, with a solemn cemetery and chapel as.

See more ideas about santa barbara mission, california missions project, california missions. Over 225 years as a historical gem in santa barbara. Reserve your spot today and pay when you're ready for thousands of tours on viator. This same year mission santa bárbara was securlarized. Missão santa bárbara) é uma igreja espanhola em santa bárbara na califórnia, estados unidos. Franciscan friars created the mission so they could convert the indigenous chumash tribe to catholicism. Shortly after columbus made his voyage to the americas, the spaniards planned to claim much of the land discovered in the new the mission at santa barbara was the tenth mission established by the franciscans. Check out the best tours and activities to experience old mission santa barbara. The queen of the missions, founded december. In the old days, it. Pack a picnic (don't forget the local wine) and spread out for happy hour at the rose garden across the way while admiring the view. Check it out and we hope you enjoy! Road trip to this historical mission built in 1786.

Of california's original 21 spanish colonial missions, it's the only one that escaped secularization under mexican rule. But the mission is a beautiful, historical destination on its own, with a solemn cemetery and chapel as. A spanish mission founded in 1786, old mission santa barbara provides an insight into the colonization of southern california. Most locals would say no. Santa barbara, california is often called, the american riviera. yet even with its many art galleries and theaters, the most popular site in the city sees to be the old mission.

Mission Santa Ines American Latino Heritage A Discover Our Shared Heritage Travel Itinerary
Mission Santa Ines American Latino Heritage A Discover Our Shared Heritage Travel Itinerary from www.nps.gov
The park hosts a large open grassy area, the a.c. As with other missions, civil authorities did not care for the mission property as well as the padres did. Today, the old mission is a. The mission's layout had 14 buildings. Father serra had originally requested permission to build the mission from the spanish governor in 1782 but the governor was concerned that the catholic church would have too. Santa barbara's layout was very long. In the northwest part of town just four blocks from state street, the santa barbara mission offers visitors a glimpse at the city's early origins. It would be the 11th california mission to be built and was named after saint barbara.

See more ideas about santa barbara mission, california missions project, california missions.

Old mission santa barbara is ranked #2 out of 15 things to do in santa barbara. Old mission santa barbara, santa barbara, california. Mission santa barbara, também conhecida como santa barbara mission (em português: The queen of the missions, founded december. Of california's original 21 spanish colonial missions, it's the only one that escaped secularization under mexican rule. It's a great place for the whole family to visit! Franciscan friars created the mission so they could convert the indigenous chumash tribe to catholicism. After the third church was destroyed by the 1812 earthquake, the present church was built in 1820. We are a living national historical landmark in santa barbara welcoming all to gather in this place of prayer, joy, community, and learning, and in acknowledgement of the past, working together toward a more just future. Aerial drawing of santa barbara. #weeklyvideo #santabarbara #santabarbaramission #oldmissionsb #sacredgarden #history #museum. This same year mission santa bárbara was securlarized. Even though there are three it is the only mission with twin bell towers.

Postel memorial rose garden, a fountain, hiking trails, a variety of sycamore and native oak trees old mission santa barbara. Old mission santa barbara's name comes from the legend of saint barbara.